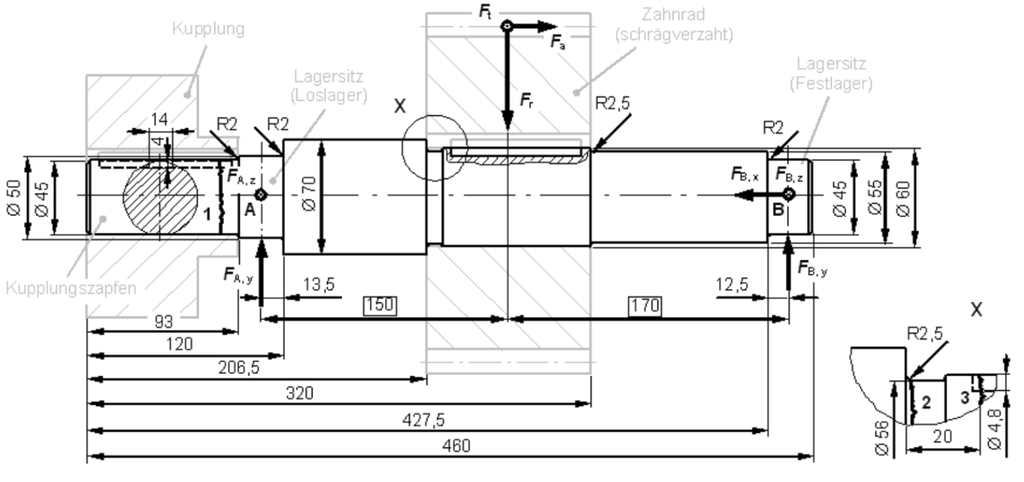
calculations
In the area of calculations, I also offer
- the classic dimensioning of machine elements such as shafts, gears, roller bearings, drive motors etc. and
- static / dynamic analyzes of individual parts and assemblies too
- Proof of strength and fatigue of non-welded individual parts and welded assemblies according to FKM guideline 2012; Edition 6 on.
